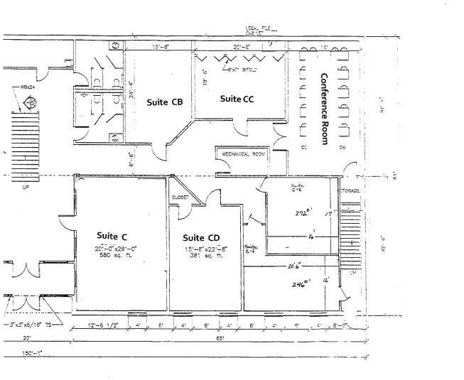
This office space is in a well maintained building that is ideally located, with easy access to I-39 and across from the Central Wisconsin Airport. This professional property offers everything you need for a productive and welcoming work environment. This main floor suite features 380 square feet of private office space, two exterior windows, small closet and two windows that face the hallway. Also included is a spacious lobby to greet clients and visitors, shared conference room equipped with whiteboard, tables, and chairs, two public restrooms and a simple flat-rate lease for hassle-free budgeting. All utilities are included as well as snow removal, lawn care, janitorial services for common areas, mechanical maintenance and garbage and recycling services. Lessee is responsible for phone, internet, personal property taxes, suite-specific janitorial (including garbage removal) and $1,000,000+ liability insurance. With three additional suites available, this building offers flexibility to expand or accommodate additional team members. Schedule a tour today and elevate your business!
Commercial/industrial For Rent
850 STATE HIGHWAY 153, Mosinee, Wisconsin 54455
Phone: 715-571-6429

