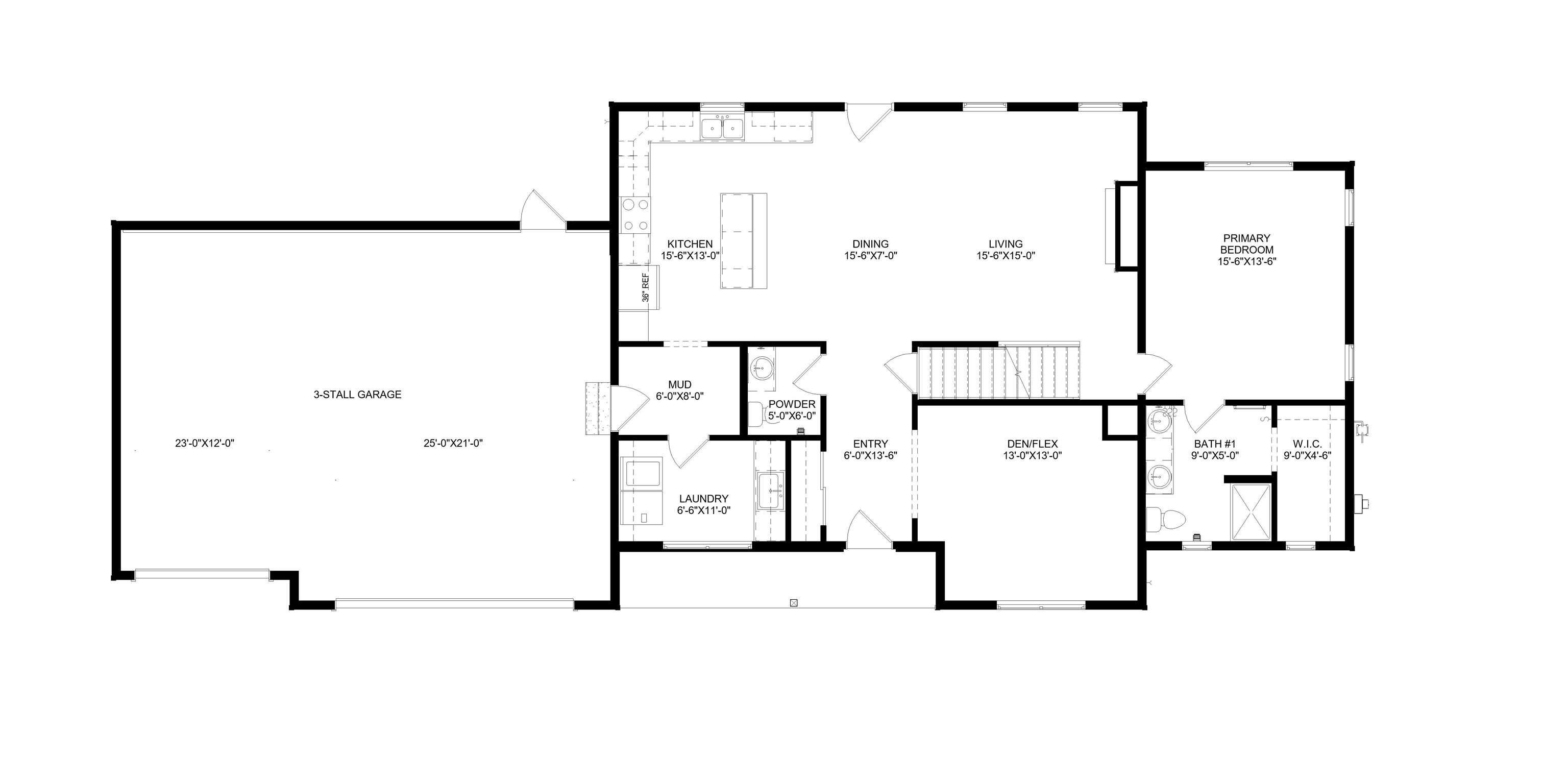
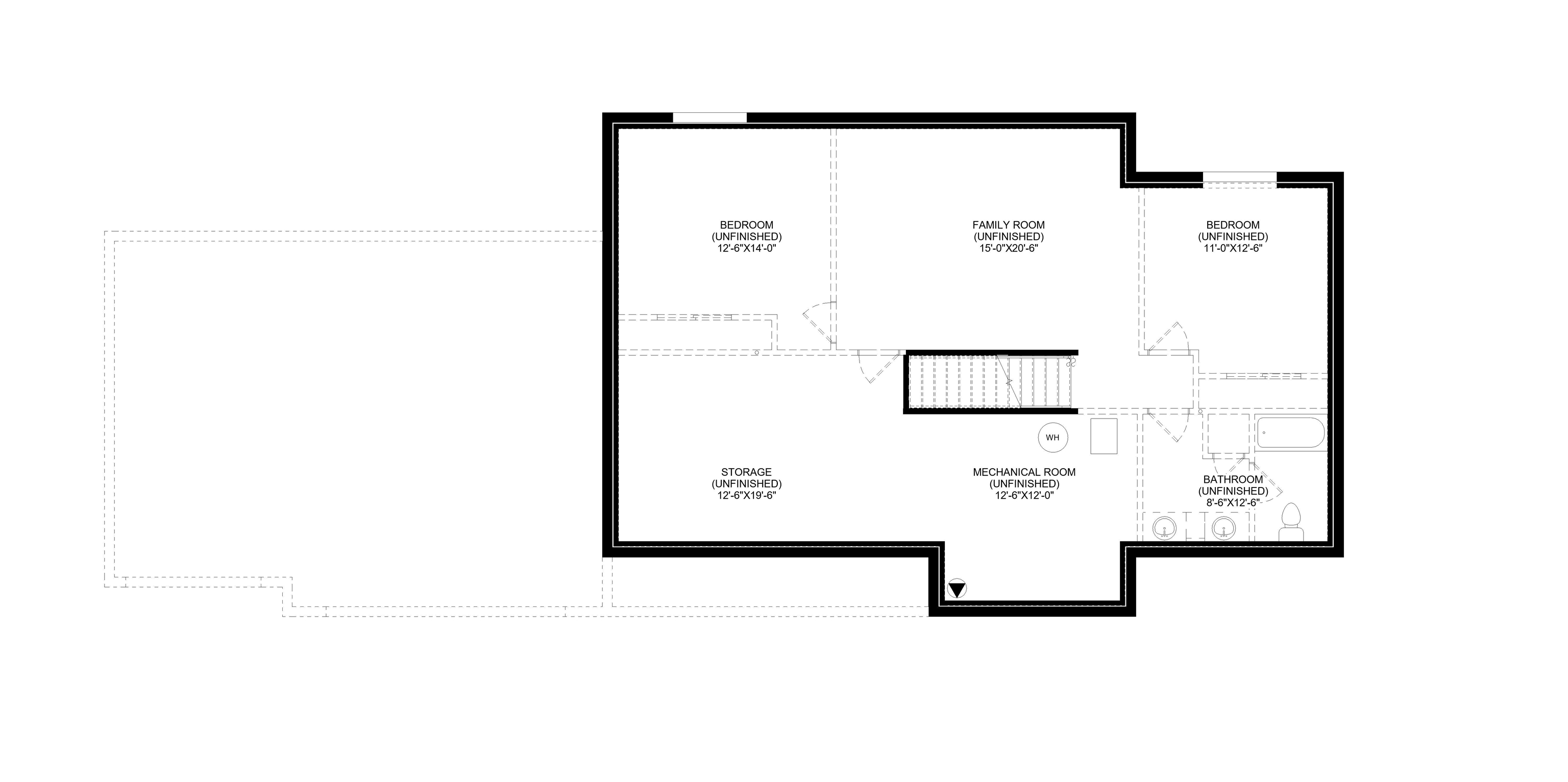
Welcome to our “Samantha” floor plan, a beautiful new two-story home in the highly sought-after Daniel’s Addition subdivision in Marshfield! Designed with both comfort and functionality in mind, this 3-bedroom, 2.5-bathroom home offers stylish finishes, an open-concept layout, and plenty of space to grow. Step inside to an inviting main floor that blends modern design with everyday convenience. The spacious living room features an electric fireplace creating a warm and welcoming focal point. The open-concept kitchen showcases white marble quartz countertops, matte black fixtures, and a matte black range hood above the stove. Durable LVP flooring flows throughout the kitchen and living areas, offering both beauty and practicality. The primary suite is also on the main floor, featuring a double vanity and a large walk-in closet, creating a private and relaxing retreat. A flex room on the main floor provides versatility, ideal for a home office, playroom, or guest space. A convenient half bathroom is located nearby for guests. The mudroom and main floor laundry are thoughtfully located off the three-car garage, which includes extra-deep stalls for additional storage or workspace. Upstairs, you’ll find two spacious bedrooms, a full bathroom, and a loft area—perfect for a reading nook, study space, or play area. The full unfinished basement offers outstanding potential for future expansion. It’s already plumbed for a third full bathroom and designed to accommodate a family room and two additional bedrooms when finished. From the modern finishes to the smart layout, this home blends everyday functionality with timeless design. Don’t miss your chance to own a brand-new home in one of Marshfield’s most desirable neighborhoods, Daniel’s Addition. SCS Homes also provides a Builder’s Warranty for your peace of mind. 1 Year General Workmanship Warranty: Most items are included for one year from the date of closing. (ex: doors & windows, siding, roofing, masonry, finishes, systems) 2 Year Mechanical Systems Warranty: Plumbing, electrical, & HVAC delivery systems are included for two years from the date of closing. 10 Year Structural Warranty: Major structural and foundation defects are included for 10 years from the date of closing. Due to various stages of construction, please use your discretion when entering the construction site. All customers, clients and buyers must be accompanied by a licensed real estate agent or a SCS Homes representative when on site, before, during or after an offer has been accepted. You may be asked to wear appropriate PPE during a showing while home is under construction. Estimated completion: Late March 2026
Residential For Sale
404 S BIRCH AVENUE, Marshfield, Wisconsin 54449
Phone: 715-693-7844

