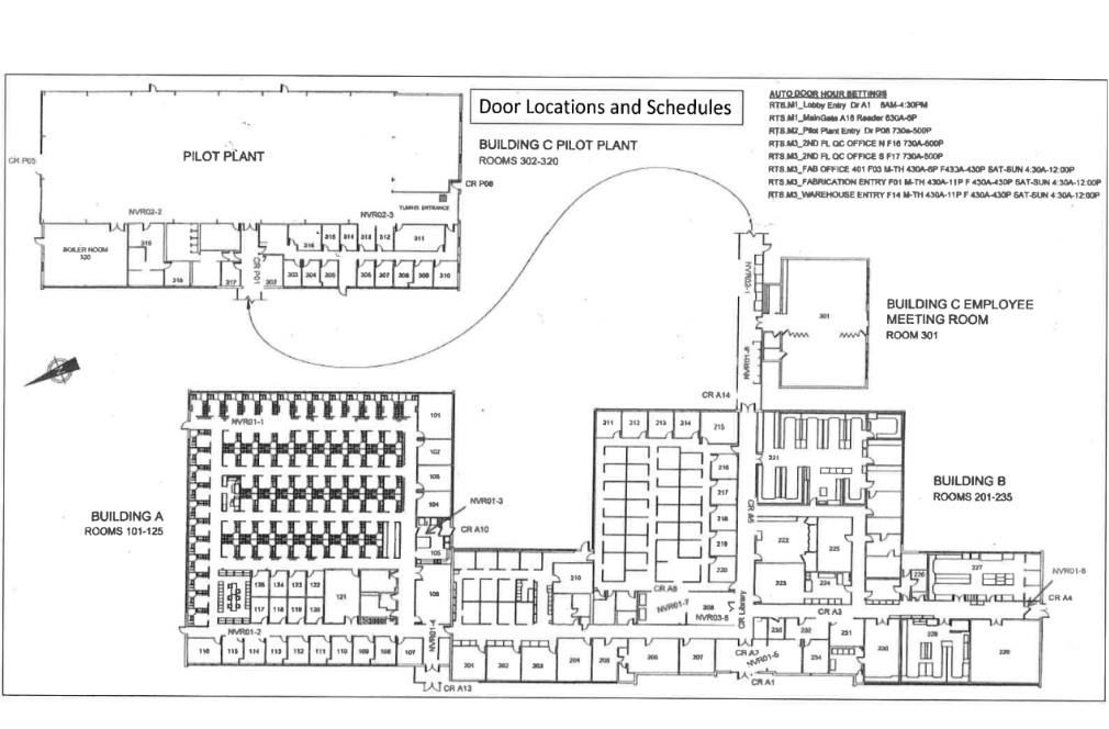
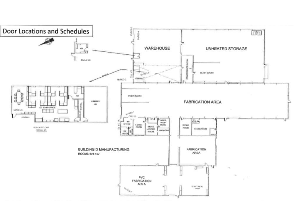
Property Description
Property Features • Mix of open workstations & private offices and lunchroom • Adjacent to walking path on Wisconsin River • Building automation system – HVAC controls • Ample parking with two driveway entrances allow for both car truck traffic Details Property borders the Wisconsin River along the west, the Canadian National Railroad track easement to the east and is just north of the I-39/Hwy 51 and Business Highway 51 interchange–allowing immediate access to four-lane highways in every direction.
Features
: Forced air, Hot water
: Other
: Paved
: Membrane/rubber
: Natural gas
: Municipal water
: Wood, Brick
Additional Information
176-2807-265-9964
: Triple net
: Commercial
Rothschild, Village Of
Off S Grand Ave
Commercial/industrial For Rent
301 W MILITARY ROAD, Rothschild, Wisconsin 54474
25,558 Sqft
$5
Listing ID #22500549
Courtesy of NAI PFEFFERLE
Basic Details
Property Type : Commercial/industrial
Sub-Type : Real estate for lease
Listing Type : For Rent
Listing ID : 22500549
Price : $5
Square Footage : 25,558 Sqft
Year Built : 1961
Country : US
State : WI
County : Marathon County
City : Rothschild
Area : Wausau
Zipcode : 54474
DOM : 371
Status : Active
Agent info
Contact Agent

