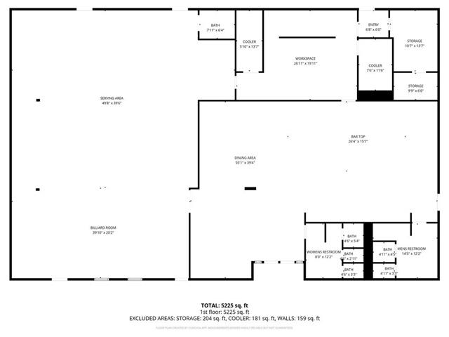
Turn Key Restaurant, Bar & Banquet Hall on 3.88 Acres — Marshfield, WI A rare opportunity awaits in the heart of Central Wisconsin. This fully equipped, turn key restaurant, bar, and banquet facility is ready for immediate operation, offering a seamless transition for its next owner. Situated on 3.88 acres with a large private parking lot, the property is well positioned to accommodate high volume dining, events, and community gatherings with ease. Inside, you’ll find an expansive commercial kitchen featuring ample prep space and updated equipment, along with a spacious banquet hall perfectly suited for weddings, corporate functions, and private celebrations. The inviting bar and dining areas provide flexible seating arrangements, allowing for a variety of service styles and event configurations. Numerous updates throughout the building enhance both functionality and presentation, making this a true move in ready operation. Located within the strong Marshfield market and surrounded by residential neighborhoods, established businesses, and high traffic corridors, the property offers excellent visibility and accessibility. Whether you are an experienced operator seeking expansion or an entrepreneur ready to introduce a new concept, this versatile property delivers the space, infrastructure, and operational assets to bring your vision to life!
Commercial/industrial For Sale
501 S WASHINGTON AVENUE, Marshfield, Wisconsin 54449
Phone: 715-387-2121

