Property Description
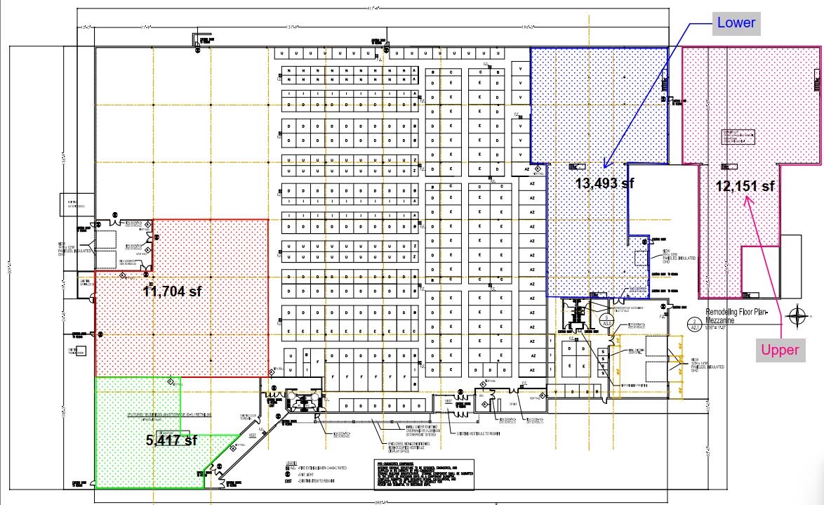
Property Features • Space 1: 13,493 SF lower and 12,151 SF upper mezzanine with two loading docks and a ground door with lower height of 11’10” and upper height of 10’9”. The office/retail space is up to 3,365 SF. • Space 2:11,704 SF with two ground overhead doors and 18’6” ceiling height to bottom of bar joist. • Space 3: 5,417 SF Details Customizable space with build out opportunities and willingness by owners for right tenants.
Features
: Forced air
: Central, Wall
: Common
: Metal
: Natural gas
: Municipal water
: Metal
Additional Information
3303215
: Triple net
: Commercial
Marshfield, City Of
off N Central Ave
Commercial/industrial For Rent
1306 N CENTRAL AVENUE, Marshfield, Wisconsin 54449
5,417 Sqft
$4
Listing ID #22600741
Courtesy of NAI PFEFFERLE
Basic Details
Property Type : Commercial/industrial
Sub-Type : Real estate for lease
Listing Type : For Rent
Listing ID : 22600741
Price : $4
Square Footage : 5,417 Sqft
Year Built : 1990
Country : US
State : WI
County : Marathon County
City : Marshfield
Area : Marshfield
Zipcode : 54449
DOM : 1108
Status : Active
Agent info
Contact Agent

