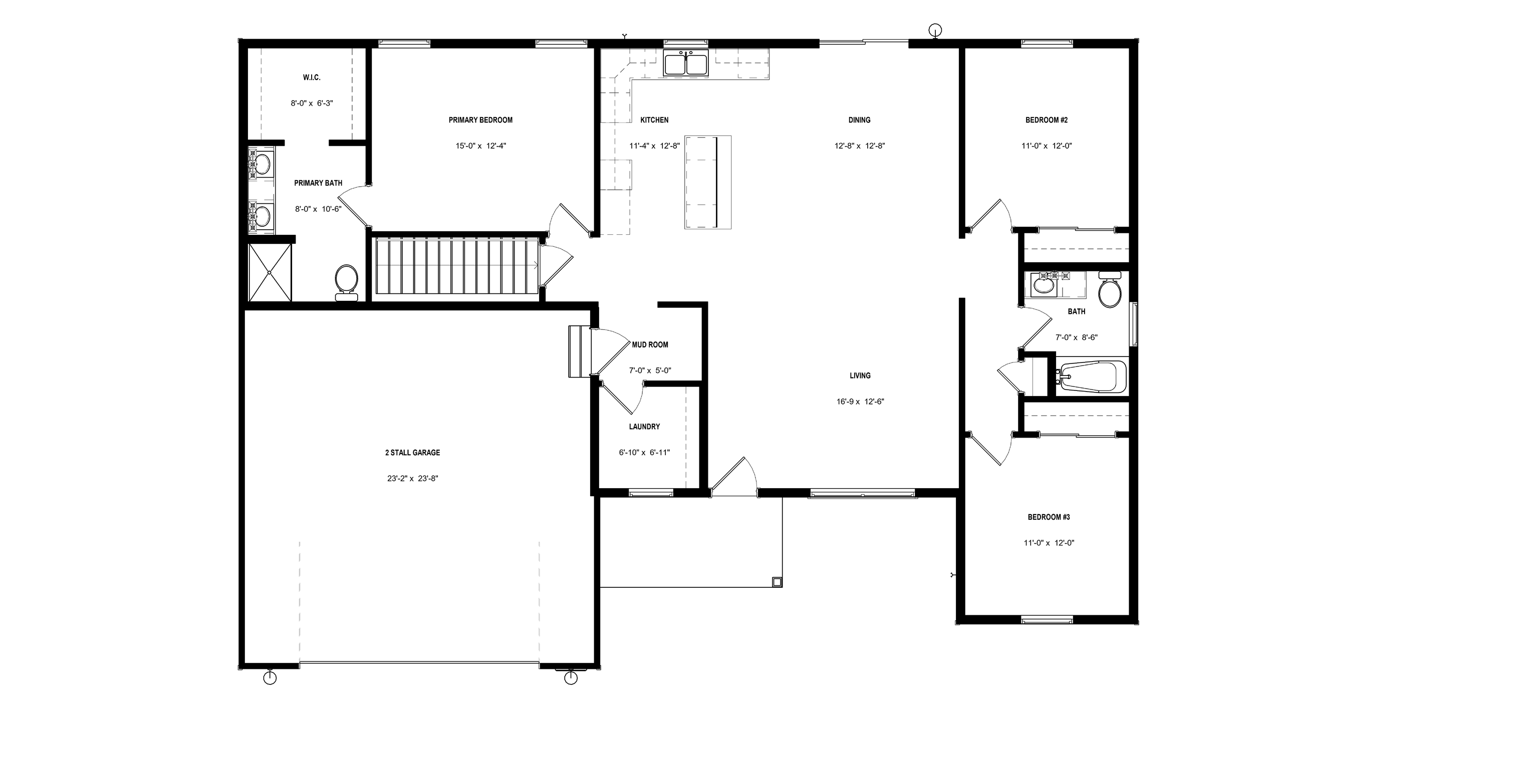
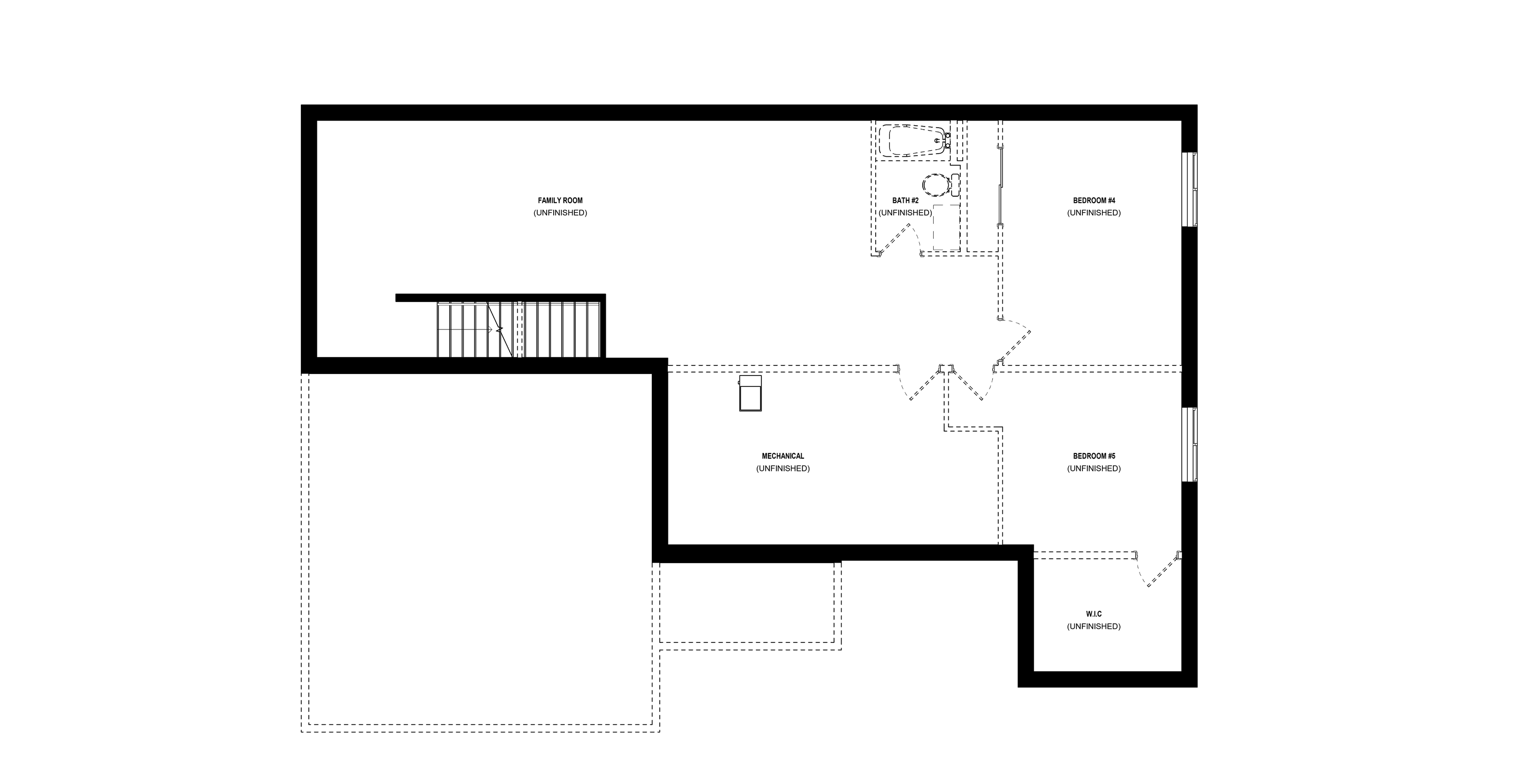
Welcome to the Carson floor plan, a thoughtfully crafted 3-bedroom, 2-bath split-ranch home scheduled for completion in June 2026. Designed with style and functionality in mind, this home offers bright, open living spaces and carefully selected finishes throughout. The open-concept main level features vaulted ceilings in the living room, creating an airy and inviting atmosphere. The kitchen showcases stone gray cabinetry, premium laminate countertops, and satin nickel fixtures and hardware for a clean, timeless look. A center island provides additional prep space and seating, while a stainless steel over-the-range microwave adds a sleek, modern touch. The kitchen flows seamlessly into the dining area, making the layout ideal for everyday living and entertaining. Luxury vinyl plank flooring extends throughout the dining, living, and bathroom areas, delivering durability with contemporary appeal. The split-ranch design offers added privacy. The primary suite serves as a comfortable retreat, complete with a dual-vanity en-suite bathroom and a spacious walk-in closet. Two additional bedrooms are located on the opposite side of the home and share a full bathroom. A main-floor laundry room and mudroom add convenience and organization. The unfinished lower level offers excellent potential for future expansion and is already stubbed for a full bathroom—ideal for adding extra living space, a recreation room, or additional bedrooms. The home also includes a 2-car garage with generous space for vehicles and storage. With quality finishes, a functional layout, and timeless design, the Carson floor plan fits a variety of lifestyles. This home is part of a thoughtfully planned community that includes multifamily housing, creating a well-rounded neighborhood designed for connection and long-term growth. SCS Homes Builder Warranty Included: • 1-Year General Workmanship Warranty • 2-Year Mechanical Systems Warranty • 10-Year Structural Warranty
Residential For Sale
1359 Knapp Street, CHETEK, Wisconsin 54729
Phone: 715-693-7844

