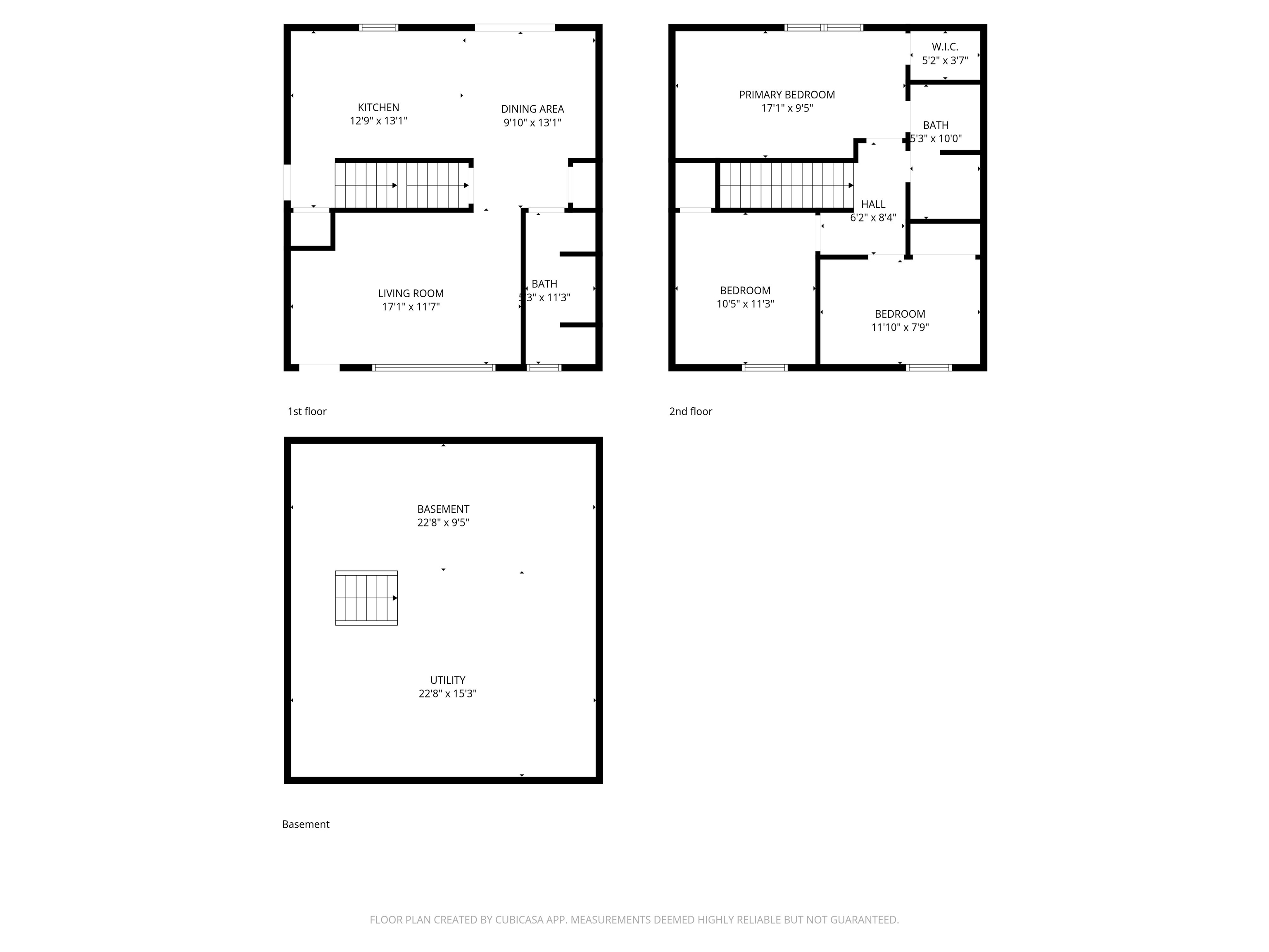
Well-maintained duplex located at 720–722 Edwards Drive in Mosinee, offering a great combination of privacy and convenience just off the main drag. Set on a wooded lot, this property features a peaceful setting with mature trees, a spacious yard, and private decks off each unit—perfect for enjoying the outdoors. Each unit has attached extra-deep two-stall garage provides excellent storage space and added convenience for both units. Each unit offers a functional and spacious layout with the kitchen, dining area, living room, and a full bath on the main level, along with large patio doors bringing in natural light. Upstairs you’ll find three bedrooms and a second full bathroom. The basement includes laundry hookups and additional storage space. Units are separately metered and each has its own furnace and central A/C for ease of management. Long-term ownership shows throughout, with the property well cared for over the years. Currently under market rents with month-to-month leases in place, this presents a strong opportunity for increased cash flow. Seller is offering the buyer a UHP Home Warranty for added peace of mind. Whether you’re looking to owner occupy or expand your investment portfolio, this property checks the boxes. Schedule your private showing today!
Multi-family For Sale
720-722 EDWARDS DRIVE, Mosinee, Wisconsin 54455
homeinfo@firstweber.com

